image/svg+xml Whispering Pines ® A LAKESHORE COMMUNITY

Malaga's Premier Manufactured Home Community

Custom Homes

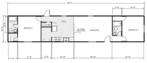
planB

Bookmark the permalink.

© 2020 Lakeshore Communities. All rights reserved.