Welcome To Whispering Pines - To learn more about living here Contact Us Today
Whispering Pines
®
A LAKESHORE COMMUNITY
Home
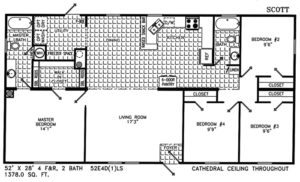
Homes for Sale
Amenities
Site Plan
Gallery
Contact
Resident Feedback
Home
Homes for Sale
Amenities
Site Plan
Gallery
Contact
Resident Feedback
Sales Information (856) 692-9513
Community Office (856) 692-9513
Community Office (856) 692-9513